Trilocale in vendita

Meta, Via Angelo Cosenza
€ 500.000
3 locali 3 locali
60 Mq 60 Mq
1 bagno 1 bagno

Trilocale in vendita

Meta, Via Angelo Cosenza

Descrizione annuncio

Nella suggestiva cornice della spiaggia di Meta, precisamente in Via Angelo Cosenza, si propone in vendita un splendido appartamento vista mare completamente ristrutturato. Questa proprietà rappresenta un'opportunità unica per chi desidera vivere in un ambiente elegante e moderno, con tutti i comfort necessari.

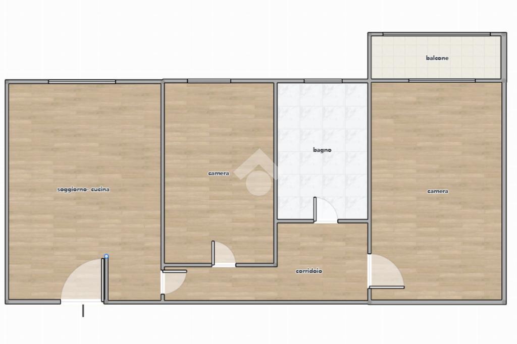
L'immobile si trova al terzo piano di un edificio senza ascensore ed è composto da: ampio soggiorno-cucina unico ambiente, cameretta, bagno e ampia camera da letto con balcone per godere della vista mare in tatale relax. Tutte le camere regalano una splendida vista mare, un dettaglio che rende questa proprietà ancora più preziosa. Completa la soluzione un posto auto a rotazione.

L'appartamento è stato totalmente e finemente ristrutturato, garantendo qualità e stile in ogni dettaglio. La vicinanza alla spiaggia rende questa proprietà ideale per chi ama vivere il mare in ogni stagione. La posizione è perfetta non solo per godersi l'estate, ma anche per passeggiate invernali ristoratrici sul lungomare.

noltre, l'appartamento è situato vicino a tutti i servizi essenziali, rendendolo non solo un'ottima residenza permanente, ma anche un investimento interessante per chi desidera affittare una proprietà in una località così ambita.

Se sei alla ricerca di una casa al mare che combini comfort, eleganza e una vista mozzafiato, questo appartamento a Meta è la scelta perfetta per te. Non perdere l'occasione di possedere un angolo di paradiso in una delle località più affascinanti della costa.

VISIOANBILE PREVIO APPUNTAMENTO TELEFONICO AL SEGUENTE RECAPITO 081.18236351 VALIDO ANCHE WHATSAPP.

Mostra tutto

Nelle vicinanze

Trasporto pubblico Trasporto pubblico
Meta
Meta
1,2 Km
Seiano
Seiano
1,6 Km
Montechiaro
Montechiaro
560 m
Trasporto pubblico
750 m
Trasporto pubblico
1,4 Km
Scuole Scuole
Scuola Elementare di Meta
800 m
Liceo classico "Publio Virgilio Marone"
1,2 Km
Scuola Media Gaetano Amalfi
1,4 Km
Scuola Primaria San Michele Arcangelo
1,5 Km
Istituto Tecnico Commerciale Ragionieri A. Manzoni
2,0 Km
Farmacia Farmacia
Farmacia
1,7 Km
Farmacia Internazionale
1,9 Km
Farmacia Castellano Dr. Elio
2,0 Km
Farmacia Leogrande - Palagiano
2,6 Km
Ospedali Ospedali
Distretto Sanitario
780 m
Ospedale De Luca e Rossano
1,9 Km
Distretto Sanitario 59
2,2 Km
Supermercati Supermercati
Tuodi
1,6 Km
Treesse
1,8 Km
Supermarket Cappiello
1,9 Km
Conad
2,0 Km
Superò Simply Market
2,3 Km
Negozi Negozi
Alimentari Panini
500 m
Negozi
1,8 Km
Blu Kids
1,9 Km
Paola Riva
1,9 Km
In Mondadori
1,9 Km
Bar Bar
Baraonda
1,8 Km
Bar
1,9 Km
Bar e area giochi coperta Parco San Michele
1,9 Km
Antico Cafè Marianiello
1,9 Km
Blue garden Bar
2,1 Km
Ristoranti Ristoranti
Ristorante Golden Beach
70 m
Marinella
390 m
Ristorante Antonietta
480 m
Tico Tico
520 m
Ristoranti
890 m
Mostra tutto

Caratteristiche

Rif.:
61138524
Piano:
3 di 3 (Piano medio)
Balconi:
1
Camere da letto:
2
Arredamento:
Assente
Condizionamento:
Autonomo
Mostra tutto
Prezzo Prezzo
€ 500.000
Rata mutuo Rata mutuo
€ 2.305 / mese
Spese annue Spese annue
€ 0
Proponi il tuo prezzoProponi il tuo prezzo

Classe Energetica

G
G
G
G
G
G
G
G
G
EP globale non rinnovabile:
175.00 kW h/m² anno
EP globale rinnovabile:
175.00 kW h/m² anno
EP invernale del fabbricato:
EP estiva del fabbricato:
Anno di costruzione:
1967
Riscaldamento:
Autonomo
Tipo impianto:
Ad aria
Tipo alimentazione:
Aria

Ti interessa visionare l'immobile?

Fissa un appuntamento  Fissa un appuntamento

Richiedi informazioni

* Questi campi sono obbligatori

Calcola il tuo mutuo

Semplice e senza impegno
Anticipo

( % )
Mutuo

( % )

pochi semplici passi

inserisci i tuoi dati
Questionario completato
Grazie per aver richiesto un appuntamento senza impegno con un nostro Consulente del Credito e Assicurativo.

Hai inserito correttamente tutti i dati necessari e a breve riceverai una e-mail con un link da convalidare per inviare i tuoi dati.
Affiliato
Ma Case Srl
Corso Italia, 200/202 80063 Piano Di Sorrento (NA)
Corso Italia, 200/202 80063 Piano Di Sorrento (NA)
Zona: Piano e Meta di Sorrento
Mostra su mappa
Affiliato
Ma Case Srl
Corso Italia, 200/202 80063 Piano Di Sorrento (NA)

2025 Tecnocasa Franchising S.p.A. - P. IVA 08365160152 - Via Monte Bianco 60/A 20089 Rozzano (MI). Ogni agenzia ha un proprio titolare ed è autonoma. Privacy policy | Policy utilizzo | Cookie policy